| 物件番号 | 3611 |
|---|---|
| 最寄駅 | JR横浜線 十日市場駅 徒歩5分 |
| 賃料 | 249,700円 |
| 坪賃料 | 13,005.21円 |
| 住所 | 横浜市 緑区 十日市場町 |
| 階層 | 地下1階,1階 |
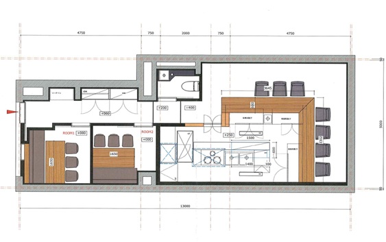
| 坪数 | 19.2坪(63.47㎡) |
物件詳細
会員登録
住所の詳細や募集図面の閲覧には会員ログインが必要です。是非こちらから無料会員登録の上、当サイトの全ての機能をご利用ください。
会員様限定の機能として「自動物件配信」があり、マイページより希望条件登録すれば、合致する新着物件が出るたびにメールでお知らせします。
この物件は募集を終了した可能性があります。
募集状態を知りたい方はお気軽にお問い合わせください。
重飲食可能居抜き店舗
登録日:2025年10月24日 / 更新日:2025年10月29日
物件情報
| 概要 | |
|---|---|
| 物件番号 | 3611 |
| 可能用途 | - |
| 所在階 | 地下1階,1階 |
| 坪数 | 19.2坪(63.47㎡) |
| 営業年数 | 23年 |
| 建物構造 | RC造(鉄筋コンクリート) |
| 築年数 | 2000年 |
| 立地 | |
|---|---|
| 住所 | 横浜市 緑区 十日市場町 |
| 路線・最寄駅 | JR横浜線 十日市場駅 徒歩5分 |
| 諸条件 | |
|---|---|
| 造作価格 | 1,000,000円 |
| 賃料 | 249,700円 |
| 坪賃料 | 13,005.21円 |
| 管理費/共益費 | - |
| 保証金/敷金 | 6ヶ月 |
| 解約時(償却) | 3ヶ月 |
| 礼金 | 2ヶ月 |
| 更新料/ 再契約料 |
1.5ヶ月 |
| その他費用 | - |
| 契約・手数料 | |
|---|---|
| 契約種別 | 定期借家 |
| 契約期間 | 7年 |
| 仲介手数料 | 1ヶ月 |
| その他手数料 | 企画料:賃料の1ヶ月分 |